Beschrijving
"English translation below"
Wonen in Amsterdam-West: Welkom bij de Elckerlijcstraat 20-1
Ben je op zoek naar een gezellig en licht hoekappartement van 54 m2 in het hart van Amsterdam? Dit karakteristieke appartement uit 1940 ademt sfeer en comfort en is gelegen in een levendige wijk die bekendstaat als fijne buurt met alle voorzieningen in de omgeving.
De Elckerlijcstraat ligt in een rustige straat en veel groen in de omgeving. In deze wijk vind je alles wat het leven leuk maakt: hippe koffietentjes, leuke winkels, scholen en groen om in te wandelen of te sporten. Het Westerpark is binnen handbereik, net als uitvalswegen en openbaar vervoer die je in een mum van tijd overal naartoe brengen in de stad.
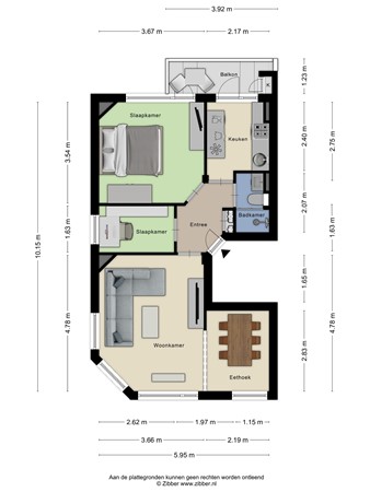
Indeling
Bij binnenkomst voel je direct het warme karakter van deze woning. Met bouwjaar 1940 kom je hier die echte Amsterdamse uitstraling tegen, maar dan wel met een hedendaags wooncomfort. Veel daglicht stroomt binnen door de vele raampartijen, waardoor het geheel open en vriendelijk aanvoelt. Dankzij de praktische indeling zijn alle ruimtes optimaal benut. Hier kun je meteen aan de slag met het inrichten van jouw eigen thuis: de perfecte basis voor iedere levensfase.
De woonkamer is royaal genoeg om zowel een gezellige zithoek als een knusse eethoek te creëren. De keuken is praktisch ingericht en biedt voldoende werk- en opbergruimte. In de aangrenzende slaapkamers is plaats genoeg voor een tweepersoonsbed, kinderbedje of, wie weet, je eigen werkplek. Zo is er voor iedereen een fijne plek. Via de keuken of slaapkamer is het balkon te betreden. De badkamer is gemoderniseerd in 2021 en voorzien van de nodige voorzieningen. Daarnaast zijn er 2 ruime bergingen op zolderverdieping aanwezig.
Bijzonderheden
- Bouwjaar: 1940
- 2 bergingen op de zolderverdieping
- Aantal kamers: 3 (waarvan 2 slaapkamers)
- Badkamer volledig gerenoveerd in 2021
- C.V. ketel vernieuwd in 2021
- Energielabel E
- Erfpacht eeuwigdurend afgekocht
- VvE met actieve bijdrage: € 170,- p/m
Kom kijken!
Zin om dit vernieuwde stadsappartement zelf te ervaren?
Neem snel contact met ons op en plan een bezichtiging in – je bent van harte welkom!
-----------------------------------------------------------------------------------------------------------------------------------------------------------------------------------------------------------------------------------------
Living in Amsterdam-West: Welcome to Elckerlijcstraat 20-1
Are you looking for a cozy and bright 54 m2 corner apartment in the heart of Amsterdam? This characteristic apartment from 1940 exudes atmosphere and comfort and is located in a lively neighborhood known for its pleasant surroundings and proximity to all amenities.
Elckerlijcstraat is located on a quiet street surrounded by greenery. In this neighborhood, you will find everything that makes life enjoyable: trendy coffee shops, nice stores, schools, and green spaces for walking or exercising. Westerpark is within easy reach, as are highways and public transportation that will take you anywhere in the city in no time.
Layout
Upon entering, you immediately feel the warm character of this home. Built in 1940, it has that authentic Amsterdam feel, but with contemporary living comfort. Plenty of daylight streams in through the many windows, making the whole place feel open and friendly. Thanks to the practical layout, all spaces are optimally utilized. Here you can immediately start decorating your own home: the perfect basis for every stage of life.
The living room is spacious enough to create both a cozy sitting area and a cozy dining area. The kitchen is practically designed and offers sufficient work and storage space. The adjoining bedrooms have enough space for a double bed, a cot, or, who knows, your own workspace. This way, there is a nice place for everyone. The balcony can be accessed via the kitchen or bedroom. The bathroom was modernized in 2021 and equipped with the necessary amenities. In addition, there are two spacious storage rooms in the attic.
Details
- Year of construction: 1940
- Two storage rooms in the attic
- Number of rooms: three (including two bedrooms)
- Bathroom completely renovated in 2021
- Central heating boiler replaced in 2021
- Energy label E
- Ground lease has been bought off for eternity
- Homeowners' association with active contribution: €170 per month
Come and see for yourself!
Would you like to experience this renovated city apartment for yourself?
Contact us today and schedule a viewing.